JD体育(亚洲)有限公司|JD Sports Global

食品廠百級千級萬級無塵車間凈化裝修

2018-11-21 14:24:07 深圳裝修公司

       食品廠百級千級萬級無塵車間凈化裝修,無塵車間也叫潔凈廠房、潔凈室、無塵室。潔凈室(CleanRoom),亦稱為無塵室或清凈室。它是污染控制的基礎。沒有潔凈室,污染敏感零件不可能批量生產。在FED-STD-2里面,潔凈室被定義為具備空氣過濾、分配、優化、構造材料和裝置的房間,其中特定的規則的操作程序以控制空氣懸浮微粒濃度,從而達到適當的微粒潔凈度級別。潔凈室是指將一定空間范圍內之空氣中的微粒子、有害空氣、細菌等之污染物排除,并將室內之溫度、潔凈度、室內壓力、氣流速度與氣流分布、噪音振動及照明、靜電控制在某一需求范圍內,而所給予特別設計之房間。亦即是不論外在之空氣條件如何變化,其室內均能俱有維持原先所設定要求之潔凈度、溫濕度及壓力等性能之特性。

食品廠無塵車間

       食品廠百級千級萬級無塵車間凈化裝修特點:

 1、組裝式結構設計,安裝方便,大大縮短了交貨周期;

 2、模塊化結構,提高凈化級別容易,擴展性強,且重復利用價值高;

 3、相對傳統無塵室,成本低、施工 快、且對樓層高度低不限。

食品廠無塵車間裝修效果圖

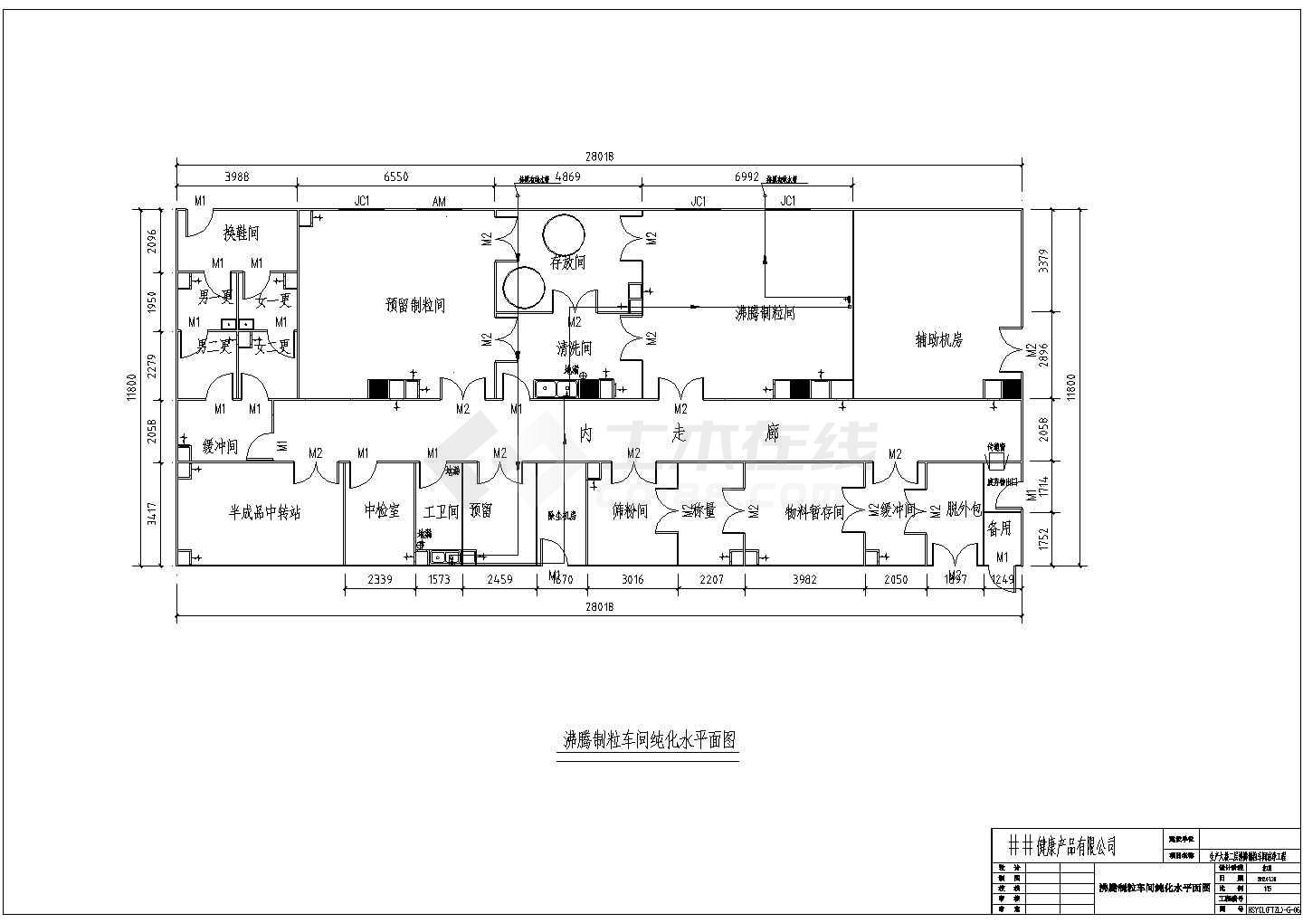
       食品廠百級千級萬級無塵車間凈化裝修,主要構件說明:

食品廠凈化車間設計圖

 內部采用凈化室專用凈化燈。不產生灰塵。

 過濾機組FFU:采用離心風機,具有長壽命、低噪聲、免維護、震動小、可無級變速等特性,風機質量可靠,工作壽命長加上獨特的風道設計. 潔凈室設計凈室工程。

       深圳海誠裝飾設計工程有限公司,主要承接食品廠、電子廠、制藥廠的無塵室設計,實驗室、無菌室的凈化,企業廠房通風、換氣、除塵、地面工程,空調主機銷售和安裝工程。歡迎來電咨詢!


深圳海誠裝飾簡介

海誠裝飾設計工程有限公司成立于2011年,是以公裝、商裝為主,免費提供空調、消防、家具、軟裝、強弱電工程總包一站式設計服務,公司資質齊全,具有建筑裝修施工貳級,設計專項乙級,鋼結構貳級,凈化工程裝修貳級資質,機電二級資質......

查看更多

廠房裝修案例

聯系我們

  • 深圳市龍崗坂田街道五和大道南5號易達晟大廈205
  • 0755-89329413
  • szhczs2006@163.com
  • e-he.com.cn
Link: JD体育,JD体育反波胆,JD体育俱乐部| JD Sports Global有限公司,JD亚洲国际体育反波胆,JD Sportbook Taruhanlawan | JD国际体育反波胆,JD体育反波胆APP下载,JD体育反波胆投资官网 | JD Sports Global有限公司,JD亚洲国际体育反波胆,JD Sportbook Taruhanlawan | JD体育反波胆俱乐部投资官网| JD国际体育反波胆| 利记sbobet股份有限公司| JD体育反波胆投资官网| JD Sportbook Taruhanlawan,JD体育反波胆APP下载,JD反波胆|football lay bet | JD体育反波胆投资官网,JD国际(反波胆)有限公司,JD反波胆APP下载 JD体育反波胆官网,JD亚洲国际,JD国际(反波胆)有限公司 | JD体育官网-JD Sports Global| JD体育反波胆平台入口| JD体育反波胆投资官网,JD国际(反波胆)有限公司,JD反波胆APP下载 JD体育反波胆官网,JD亚洲国际,JD国际(反波胆)有限公司 | JD体育官网-JD Sports Global| JD Sports Global,JD亚洲国际体育反波胆,JD体育反波胆平台 | JD体育俱乐部(反波胆)有限公司| JD体育反波胆俱乐部投资官网 | JD体育反波胆APP下载| JD体育反波胆官方网站| JD Sports Global反波胆APP下载,JD体育反波胆官网,JD反波胆俱乐部APP下载 | JD体育 Sportbook Taruhanlawan JD体育反波胆|football lay bet | JD体育反波胆官网| JD体育官网-JD Sports Global| JD体育反波胆|Sportbook Taruhanlawan| JD Sportbook Taruhanlawan,JD体育反波胆官网,JD国际反波胆 | JD Sports Global 亚洲国际体育反波胆有限公司 | JD亚洲国际体育反波胆| JD体育反波胆投资官网,JD体育反波胆有限公司,JD反波胆俱乐部官方网站 | JD国际体育反波胆| JD体育反波胆官方网站| JD体育反波胆官网| JD体育-JD Sports Global| JD体育反波胆|football lay bet| JD Sportbook Taruhanlawan,JD体育反波胆APP下载,JD反波胆|football lay bet | JD体育反波胆投资官网,JD体育反波胆有限公司,JD反波胆俱乐部官方网站 | JD体育俱乐部反波胆| JD体育官网-JD Sports Global| JD Sports Global,JD反波胆有限公司,JD体育反波胆有限公司 | JD Sportbook Taruhanlawan,JD体育反波胆APP下载,JD反波胆|football lay bet | sbobet登陆平台| JD体育反波胆投资官网,JD体育反波胆有限公司,JD反波胆俱乐部官方网站 |